西宮北口プライマリーワン 7階
収納はシューズボックス・クロゼットなどが備え付けられているので、衣類や日用品の収納に重宝します。オートロック機能を備え付けているので、建物内は基本的に住民のみという環境に安心感が得られます。設備・環境ともに良い10.6万円の物件です。西宮市にお引っ越しが決まったら、住まい探しは当社にお任せください。当社では豊富な賃貸情報をご用意して、お客様からのお問い合わせをお待ちしております。
- 賃料
- 10.6万円
- 間取り
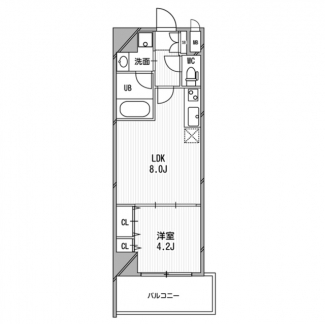
- 1LDK
- 専有面積
- 31.02㎡
- 所在階
- 7階
- 管理費+共益費
- 10000円
- 敷金
- 0ヶ月
- 礼金
- 0ヶ月
消費税法の改正と価格等の表示について
当サイトの課税対象となる物件価格およびその他費用等は、税込み表示となっております。
※消費税法の改正に伴い、物件の引き渡し時期、お支払い時期等により課税率が異なります。
詳しくは、各情報提供元の不動産会社にご確認くださいますようお願いいたします。
担当者のコメント
ポイント・特徴
CS バイク置場 バルコニー フローリング オートロック
物件概要 【マンション】 物件番号:5984716 情報更新日:2026年04月24日 次回更新予定日:2026年05月05日
| 物件名 | 西宮北口プライマリーワン | ||
|---|---|---|---|
| 所在地 | 兵庫県西宮市南昭和町 | ||
| 交通 |
|
||
| 間取り/詳細 | 1LDK - | ||
| 賃料 | 10.6万円 | 管理費+共益費 | 10000円 |
| 敷金/保証金/礼金 | 0ヶ月/ -/ 0ヶ月 | 償却/敷引 | -/ - |
| 面積 | 31.02㎡ | バルコニー面積 | - |
| 築年月(築年数)/方位 | 2007年 6月(築18年)/南 | 契約期間 | 2年 |
| 種別/構造 | マンション/RC | 部屋/所在階/階建 | 0704/ 7階/ 9階建 |
| 総戸数 | 39戸 | 現況/入居可能日 | 空家/即時 |
| 管理形態 | - | 管理方式 | - |
| 駐車場/料金 | -/- | 保険加入/料金 | 加入義務有/22000円 |
| 権利金/雑費 | -/- | 取引形態/賃貸区分 | 仲介/一般 |
| 修繕積立金 | - | ||
| 設備条件 |
|
||
| 賃貸保証等 |
【必須加入】 株式会社エポスカード |
||
| 条件(その他) | 二人入居可:可 | ||
| その他初期費用1 | カギ費用:22000円 | ||
| その他初期費用2 | 退去時RC代:33000円 | ||
ただいまの掲載物件数:




















