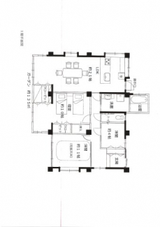
御影山手4丁目戸建賃貸 1階
消費税法の改正と価格等の表示について
当サイトの課税対象となる物件価格およびその他費用等は、税込み表示となっております。
※消費税法の改正に伴い、物件の引き渡し時期、お支払い時期等により課税率が異なります。
詳しくは、各情報提供元の不動産会社にご確認くださいますようお願いいたします。
ポイント・特徴
戸建住宅ですが2階は外階段で独立しており、現在大家さんが時々泊まります
物件概要 【一戸建て】 物件番号:5970625 情報更新日:2026年04月25日 次回更新予定日:2026年05月02日
| 物件名 | 御影山手4丁目戸建賃貸 | ||
|---|---|---|---|
| 所在地 | 兵庫県神戸市東灘区御影山手4丁目 | ||
| 交通 |
|
||
| 間取り/詳細 |
3SLDK LDK 21畳 洋室 10畳 洋室 8畳 洋室 4畳 S 2.5畳 |
||
| 賃料 | 30万円 | 管理費+共益費 | - |
| 敷金/保証金/礼金 | 1ヶ月/ -/ 1ヶ月 | 償却/敷引 | -/ - |
| 面積 | 97㎡ | バルコニー面積 | - |
| 築年月(築年数)/方位 | 1966年 7月(築59年)/- | 契約期間 | 2年 |
| 種別/構造 | 一戸建て/RC | 部屋/所在階/階建 | -/ 1階/ 1階建 |
| 総戸数 | - | 現況/入居可能日 | 空家/即時 |
| 管理形態 | 自主管理 | 管理方式 | - |
| 駐車場/料金 | 有/- | 保険加入/料金 | 加入義務有/- |
| 権利金/雑費 | -/- | 取引形態/賃貸区分 | 専任媒介/定期借家権 |
| 修繕積立金 | - | ||
| 設備条件 |
|
||
| 賃貸保証等 | 【必須加入】 | ||
| 設備(その他) | 食洗機あり | ||
ただいまの掲載物件数:




















