NISHINOMIYA・FRONT 5階
「NISHINOMIYA・FRONT」です♪ハイグレード賃貸マンション♪EVホールは各住戸で準専用、床暖房・かん太くん装備、徒歩3分で駅にアクセスできる物件です♪西宮市なら、お客様の希望条件を満たす住まいを求めることができるでしょう♪まずは、info@nagomi-chintai.comや0798-42-7908までご連絡ください(*^_^*)
- 賃料
- 15.8万円
- 間取り
- 1SLDK
- 専有面積
- 54.54㎡
- 所在階
- 5階
- 管理費+共益費
- 13000円
- 敷金
- 0ヶ月
- 礼金
- 17.1万円
消費税法の改正と価格等の表示について
当サイトの課税対象となる物件価格およびその他費用等は、税込み表示となっております。
※消費税法の改正に伴い、物件の引き渡し時期、お支払い時期等により課税率が異なります。
詳しくは、各情報提供元の不動産会社にご確認くださいますようお願いいたします。
-
-
- ライフ 今津駅前店
約1203m/15分
-
- ジャパン 西宮戎店
約1128m/14分
-
- ファミリーマート 西宮枦塚町店
約750m/9分
-
- ミニストップ 西宮中前田町店
約886m/11分
-
- ファミリーマート 今津駅前店
約1089m/13分
-
- ニトリ 西宮駅前店
約740m/9分
-
- 西宮渡辺心臓・血管センター
約408m/5分
-
- 京都銀行西宮支店
約724m/9分
-
- 播州信用金庫今津支店
約1111m/14分
-
- えびす宮総本社 西宮神社
約706m/9分
-
- 今津(阪急線)
約1141m/14分
-
- 今津(阪神線)
約1202m/15分
-
担当者のコメント
ポイント・特徴
2月末までキャンペーンのためホームページからのお問合せのみ仲介手数料なし!(不動産情報サイトからのお問合せは家賃の55%)衣類乾燥機 給湯 防犯カメラ 3駅以上利用可 トイレ未使用
物件概要 【マンション】 物件番号:5937502 情報更新日:2026年04月24日 次回更新予定日:2026年04月26日
| 物件名 | NISHINOMIYA・FRONT | ||
|---|---|---|---|
| 所在地 | 兵庫県西宮市与古道町 | ||
| 交通 |
|
||
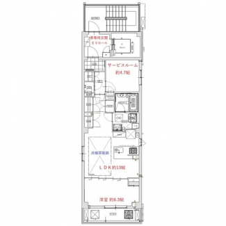
| 間取り/詳細 |
1SLDK LDK 13畳 洋室 6.3畳 S 4.7畳 |
||
| 賃料 | 15.8万円 | 管理費+共益費 | 13000円 |
| 敷金/保証金/礼金 | 0ヶ月/ -/ 17.1万円 | 償却/敷引 | -/ - |
| 面積 | 54.54㎡ | バルコニー面積 | - |
| 築年月(築年数)/方位 | 2026年 2月(新築)/- | 契約期間 | 2年 |
| 種別/構造 | マンション/鉄骨造 | 部屋/所在階/階建 | 501/ 5階/ 5階建 |
| 総戸数 | - | 現況/入居可能日 | 空家/相談 |
| 管理形態 | - | 管理方式 | - |
| 駐車場/料金 | -/- | 保険加入/料金 | 加入義務有/10000円 |
| 権利金/雑費 | -/- | 取引形態/賃貸区分 | 仲介/一般 |
| 修繕積立金 | - | ||
| 設備条件 |
|
||
| 賃貸保証等 | 【必須加入】 | ||
| 備考 | 2月末までキャンペーンのためホームページからのお問合せのみ仲介手数料なし!(不動産情報サイトからのお問合せは家賃の55%)「NISHINOMIYA・FRONT」:西宮市エリアの新居にピッタリ☆西宮渡辺心臓・血管センターまで徒歩6分なので、近くて安心☆共用部には宅配ボックスが備え付けられているため、非対面で荷物を受け取れます☆阪神本線西宮周辺に住まいを探すなら、西宮市に詳しい当社にお任せください☆お電話でのお問い合わせは0798-42-7908までお気軽にどうぞ(#^^#) | ||
| その他初期費用1 | ファイテック:7260円 | ||
ただいまの掲載物件数:




















