神戸市中央区楠町6丁目のマンション 3階
- 賃料
- 6.7万円
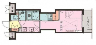
- 間取り
- 1K
- 専有面積
- 24.4㎡
- 所在階
- 3階
- 管理費+共益費
- 10000円
- 敷金
- -
- 礼金
- -
消費税法の改正と価格等の表示について
当サイトの課税対象となる物件価格およびその他費用等は、税込み表示となっております。
※消費税法の改正に伴い、物件の引き渡し時期、お支払い時期等により課税率が異なります。
詳しくは、各情報提供元の不動産会社にご確認くださいますようお願いいたします。
物件概要 【マンション】 物件番号:5970962 情報更新日:2026年04月26日 次回更新予定日:2026年05月10日
| 物件名 | 神戸市中央区楠町6丁目のマンション | ||
|---|---|---|---|
| 所在地 | 兵庫県神戸市中央区楠町6丁目 | ||
| 交通 |
|
||
| 間取り/詳細 |
1K 洋 7.1 |
||
| 賃料 | 6.7万円 | 管理費+共益費 | 10000円 |
| 敷金/保証金/礼金 | -/ -/ - | 償却/敷引 | -/ - |
| 面積 | 24.4㎡ | バルコニー面積 | - |
| 築年月(築年数)/方位 | 2015年 2月(築11年)/- | 契約期間 | 2年 |
| 種別/構造 | マンション/RC | 部屋/所在階/階建 | -/ 3階/ 9階建 |
| 総戸数 | - | 現況/入居可能日 | 空家/2026年4月下旬予定 |
| 管理形態 | - | 管理方式 | - |
| 駐車場/料金 | 有/14300円 | 保険加入/料金 | 加入義務有/21500円 |
| 権利金/雑費 | -/- | 取引形態/賃貸区分 | 貸主/一般 |
| 修繕積立金 | - | ||
| 設備条件 |
|
||
| 賃貸保証等 |
【必須加入】 日本セーフティー50% |
||
| 備考 | 退去時ハウスクリーニング費用33,000円要家電付(2段式冷蔵庫・洗濯機・オーブンレンジ)! | ||
| 鍵交換代 | 33000円 | ||
ただいまの掲載物件数:


















