姫路市勝原区山戸のアパート 1階
消費税法の改正と価格等の表示について
当サイトの課税対象となる物件価格およびその他費用等は、税込み表示となっております。
※消費税法の改正に伴い、物件の引き渡し時期、お支払い時期等により課税率が異なります。
詳しくは、各情報提供元の不動産会社にご確認くださいますようお願いいたします。
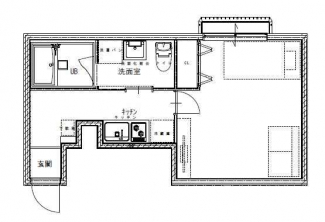
物件概要 【アパート】 物件番号:5977046 情報更新日:2026年04月12日 次回更新予定日:2026年04月26日
| 物件名 | 姫路市勝原区山戸のアパート | ||
|---|---|---|---|
| 所在地 | 兵庫県姫路市勝原区山戸 | ||
| 交通 |
|
||
| 間取り/詳細 | 1K - | ||
| 賃料 | 5.1万円 | 管理費+共益費 | - |
| 敷金/保証金/礼金 | -/ -/ - | 償却/敷引 | -/ - |
| 面積 | 24.4㎡ | バルコニー面積 | - |
| 築年月(築年数)/方位 | 2024年 9月(築1年)/- | 契約期間 | 2年 |
| 種別/構造 | アパート/木造 | 部屋/所在階/階建 | -/ 1階/ 2階建 |
| 総戸数 | 8戸 | 現況/入居可能日 | 居住中/2026年5月中旬予定 |
| 管理形態 | - | 管理方式 | - |
| 駐車場/料金 | 有/3000円 | 保険加入/料金 | 加入義務有/9350円 |
| 権利金/雑費 | -/- | 取引形態/賃貸区分 | 貸主/一般 |
| 修繕積立金 | - | ||
| 設備条件 |
|
||
| 賃貸保証等 |
【必須加入】 エントランス、総賃料60又は80%、決済サービス料550円。 |
||
| 備考 | ※ペット飼育時敷金UP(小型犬1カ月・猫2カ月)。 | ||
| 鍵交換代 | 18700円 | ||
| その他初期費用1 | 退去時クリーニング(:33000円 | ||
| その他初期費用2 | 入町費:3000円 | ||
ただいまの掲載物件数:




















