ユーヴェ常光寺 1階
室内設備は洗面所独立・浴室乾燥機など充実した設備を備え付けています。収納はクロゼット・シューズボックスなど豊富なので、広々と空間を利用することも可能です。直接会わずにインターホン越しに来訪者を確認できるので、トラブルの事前回避にも繋がります。これからの新生活で失敗できないお部屋探し。尼崎市や東海道本線尼崎付近でお探しなら、信頼と安心の当社へご連絡をお待ちしております。
- 賃料
- 6.9万円
- 間取り
- 1LDK
- 専有面積
- 30.63㎡
- 所在階
- 1階
- 管理費+共益費
- 3000円
- 敷金
- 0ヶ月
- 礼金
- 0ヶ月
消費税法の改正と価格等の表示について
当サイトの課税対象となる物件価格およびその他費用等は、税込み表示となっております。
※消費税法の改正に伴い、物件の引き渡し時期、お支払い時期等により課税率が異なります。
詳しくは、各情報提供元の不動産会社にご確認くださいますようお願いいたします。
-
-
- じゃんぼ総本店 武庫之荘店
約784m/10分
-
- キャンドゥ KOHYO武庫之荘店
約905m/11分
-
- ファミリーマート 尼崎武庫之荘駅前店
約835m/10分
-
- ドコモショップ 武庫之荘店
約941m/11分
-
- 餃子の王将 武庫之荘店
約865m/11分
-
- 天下一品 武庫之荘店
約877m/11分
-
- ソフトバンク武庫之荘
約969m/12分
-
- ケンタッキーフライドチキン 武庫之荘駅前店
約965m/12分
-
- 大分からあげ わん 武庫之荘駅前店
約854m/10分
-
- 潮武庫之荘駅前保育園
約869m/11分
-
- 神門さんの保育園
約5313m/66分
-
- KJゼミナール
約1591m/20分
-
- OKセミナー
約1767m/22分
-
- 個別指導WAM 小曽根校
約4811m/60分
-
- や台ずし 立花駅北口町
約1907m/24分
-
- スシロー 西宮門前町店
約4933m/61分
-
- 丸亀製麺 西宮店
約4918m/61分
-
- 甲子園牛萬
約5869m/73分
-
- 鮨・酒・肴 杉玉 阪急武庫之荘
約975m/12分
-
- ラーメン横綱阪急武庫之荘店
約975m/12分
-
担当者のコメント
ポイント・特徴
洗髪洗面化粧台 敷地内ごみ置き場 温水洗浄便座 給湯 浴室乾燥機
物件概要 【アパート】 物件番号:5973140 情報更新日:2026年04月26日 次回更新予定日:2026年04月27日
| 物件名 | ユーヴェ常光寺 | ||
|---|---|---|---|
| 所在地 | 兵庫県尼崎市常光寺1丁目 | ||
| 交通 |
|
||
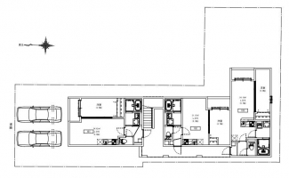
| 間取り/詳細 |
1LDK LDK 8.6畳 洋室 3.7畳 |
||
| 賃料 | 6.9万円 | 管理費+共益費 | 3000円 |
| 敷金/保証金/礼金 | 0ヶ月/ -/ 0ヶ月 | 償却/敷引 | -/ - |
| 面積 | 30.63㎡ | バルコニー面積 | - |
| 築年月(築年数)/方位 | 2018年 12月(築7年)/南 | 契約期間 | 2年 |
| 種別/構造 | アパート/木造 | 部屋/所在階/階建 | 103/ 1階/ 3階建 |
| 総戸数 | - | 現況/入居可能日 | 空家/即時 |
| 管理形態 | - | 管理方式 | 巡回 |
| 駐車場/料金 | 近隣/16500円 | 保険加入/料金 | 加入義務有/- |
| 権利金/雑費 | -/- | 取引形態/賃貸区分 | 一般媒介/一般 |
| 修繕積立金 | - | ||
| 設備条件 |
|
||
| 賃貸保証等 | 【必須加入】 | ||
| 鍵交換代 | 33000円 | ||
| その他初期費用1 | 入居者アプリ設定料:16500円 | ||
ただいまの掲載物件数:




















