神戸市東灘区森南町1丁目のマンション 8階
消費税法の改正と価格等の表示について
当サイトの課税対象となる物件価格およびその他費用等は、税込み表示となっております。
※消費税法の改正に伴い、物件の引き渡し時期、お支払い時期等により課税率が異なります。
詳しくは、各情報提供元の不動産会社にご確認くださいますようお願いいたします。
物件概要 【マンション】 物件番号:5975678 情報更新日:2026年04月22日 次回更新予定日:2026年05月06日
| 物件名 | 神戸市東灘区森南町1丁目のマンション | ||
|---|---|---|---|
| 所在地 | 兵庫県神戸市東灘区森南町1丁目 | ||
| 交通 |
|
||
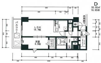
| 間取り/詳細 |
1LDK 洋 6.5 |
||
| 賃料 | 13.7万円 | 管理費+共益費 | 8000円 |
| 敷金/保証金/礼金 | -/ -/ 2ヶ月 | 償却/敷引 | -/ - |
| 面積 | 55.05㎡ | バルコニー面積 | - |
| 築年月(築年数)/方位 | 2021年 7月(築4年)/西 | 契約期間 | 2年 |
| 種別/構造 | マンション/RC | 部屋/所在階/階建 | -/ 8階/ 8階建 |
| 総戸数 | - | 現況/入居可能日 | 空家/相談 |
| 管理形態 | - | 管理方式 | - |
| 駐車場/料金 | -/- | 保険加入/料金 | 加入義務有/18310円 |
| 権利金/雑費 | -/- | 取引形態/賃貸区分 | 専任媒介/一般 |
| 修繕積立金 | - | ||
| 設備条件 |
|
||
| 賃貸保証等 |
【必須加入】 賃料保証加入要 |
||
ただいまの掲載物件数:




















