シャトー東洋 5階
- 賃料
- 3.9万円
- 間取り
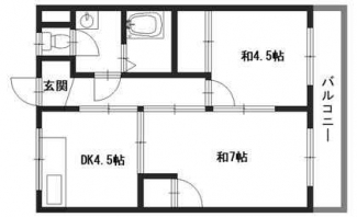
- 2DK
- 専有面積
- 38.88㎡
- 所在階
- 5階
- 管理費+共益費
- -
- 敷金
- -
- 礼金
- 1ヶ月
消費税法の改正と価格等の表示について
当サイトの課税対象となる物件価格およびその他費用等は、税込み表示となっております。
※消費税法の改正に伴い、物件の引き渡し時期、お支払い時期等により課税率が異なります。
詳しくは、各情報提供元の不動産会社にご確認くださいますようお願いいたします。
物件概要 【マンション】 物件番号:5946797 情報更新日:2026年04月21日 次回更新予定日:2026年05月05日
| 物件名 | シャトー東洋 | ||
|---|---|---|---|
| 所在地 | 兵庫県姫路市五軒邸4丁目 | ||
| 交通 |
|
||
| 間取り/詳細 | 2DK - | ||
| 賃料 | 3.9万円 | 管理費+共益費 | - |
| 敷金/保証金/礼金 | -/ -/ 1ヶ月 | 償却/敷引 | -/ - |
| 面積 | 38.88㎡ | バルコニー面積 | - |
| 築年月(築年数)/方位 | 1972年 11月(築53年)/- | 契約期間 | 2年 |
| 種別/構造 | マンション/RC | 部屋/所在階/階建 | 514/ 5階/ 8階建 |
| 総戸数 | - | 現況/入居可能日 | 空家/即時 |
| 管理形態 | - | 管理方式 | - |
| 駐車場/料金 | -/- | 保険加入/料金 | 加入義務有/17000円 |
| 権利金/雑費 | -/- | 取引形態/賃貸区分 | 一般媒介/一般 |
| 修繕積立金 | - | ||
| 設備条件 |
|
||
| 賃貸保証等 |
【必須加入】 日本セーフティー プラン1 初回賃料総額の50%(最低保証料20,000円) 月額保証料900円 N |
||
| 鍵交換代 | 11000円 | ||
| その他初期費用1 | 初回抗菌施工費:17600円 | ||
| その他初期費用2 | 退去時クリーニング費:33000円 | ||
| その他初期費用3 | 短期解約違約金1年以:78000円 | ||
| その他初期費用4 | 短期解約違約金2年以:39000円 | ||
ただいまの掲載物件数:


















