西舞子9丁目 新築戸建て
小学校が十分通学できる範囲にあります。神戸市立西舞子小学校が徒歩6分です。クローゼットが3ヶ所あります。トイレが2ヶ所にあるので複数人でも快適に暮らせます。4,580万円で、住み心地も良くおすすめの物件です。神戸市垂水区の山陽電鉄本線西舞子周辺には、マイホームに相応しい一戸建て情報が豊富です。引っ越しをお考えの方は、お気軽にご連絡ください。
- 価格
- 4580万円
- ローンの目安
- 13.7万円/月
- 所在地/交通
- 兵庫県神戸市垂水区西舞子9丁目
山陽電鉄本線「西舞子」駅 徒歩16分
- 間取り/建物面積
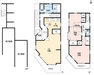
- 3LDK
111.78㎡
消費税法の改正と価格等の表示について
当サイトの課税対象となる物件価格およびその他費用等は、税込み表示となっております。
※消費税法の改正に伴い、物件の引き渡し時期、お支払い時期等により課税率が異なります。
詳しくは、各情報提供元の不動産会社にご確認くださいますようお願いいたします。
-
-
- 神戸市立西舞子小学校
約407m/5分
-
- 神戸市立舞子中学校
約432m/5分
-
- マルアイ舞子坂店
約600m/7分
-
- フレスポ舞子坂
約599m/7分
-
- ローソン 神戸清水が丘三丁目店
約804m/10分
-
- Seria フレスポ舞子坂店
約585m/7分
-
- 舞子駅
約1859m/23分
-
- エニタイムフィットネス 垂水店
約829m/10分
-
ローンシミュレーションこの物件を購入した場合の、月々の支払い価格の一例です。
- 返済期間
-
- 金利
-
- ボーナス時の増額(1回分)
-
- 借入金額:
-
- 頭金:
-

- 毎月の返済額:
(※元利均等方式 金利5.00%まで ※返済年数5~35年まで入力できます)
(※ボーナスは年2回で計算しています。1000万円まで入力できます)
担当者のコメント
ポイント・特徴
クロゼット3ヶ所 バルコニー 3口以上コンロ 陽当り良好 洗髪洗面化粧台
物件概要 【新築一戸建て】 物件番号:5972517 情報更新日:2026年04月27日 次回更新予定日:2026年05月04日
| 物件名 | 西舞子9丁目 新築戸建て | ||
|---|---|---|---|
| 所在地 | 兵庫県神戸市垂水区西舞子9丁目 | ||
| 交通 |
|
||
| 間取り/詳細 |
3LDK/
LDK 18畳 洋室 6畳 洋室 4.5畳 洋室 6畳 |
||
| 接道状況 | -(北東 4m ) | ||
| 価格 | 4580万円 | 主要採光面 | - |
| 建物面積/坪数 | 111.78㎡/ 33.81坪 | 土地面積/坪数 | 146.32㎡/ 44.26坪 |
| 種別/構造 | 新築一戸建て/木造 | 築年月(築年数) | 2026年 2月(新築) |
| 階建 | 2階建 | 地目 | 宅地 |
| 駐車場/料金 | 有/- | 地勢 | - |
| 私道負担面積 | - | セットバック | 無 |
| 都市計画 | 市街化区域 | 建築確認区分 /建築確認番号 |
-/J25-20221号 |
| 建ぺい率 | 60% | 容積率 | 150% |
| 土地権利 | 所有権 | 用途地域 | 第一種低層住居専用 |
| 借地料 | - | 現況 | 空家 |
| 棟総戸数 | - | 販売戸数 | - |
| 国土法届出要否 | 不要 | その他の法令上の制限 | - |
| 取引態様 | 仲介 | 引渡時期 | - |
| 設備条件 |
|
||
| 備考 | 小学校が十分通学できる範囲にあります。神戸市立西舞子小学校が徒歩6分です。システムキッチン付きの物件です。令和8年2月築のコチラの物件は、落ち着きのある室内が魅力的です。神戸市垂水区には多種多様な一戸建てがございますので、マイホームの購入をお考えなら、ぜひ当社までご連絡ください。お待ちしております。 | ||
ただいまの掲載物件数:






















