須磨区千守町1丁目 新築戸建
消費税法の改正と価格等の表示について
当サイトの課税対象となる物件価格およびその他費用等は、税込み表示となっております。
※消費税法の改正に伴い、物件の引き渡し時期、お支払い時期等により課税率が異なります。
詳しくは、各情報提供元の不動産会社にご確認くださいますようお願いいたします。
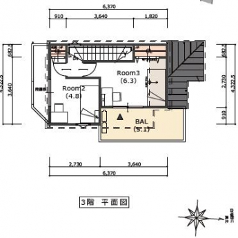
物件概要【新築一戸建て】
- 物件名
- 須磨区千守町1丁目 新築戸建
- 所在地
- 兵庫県神戸市須磨区千守町1丁目
- 交通
-
- 山陽本線「須磨」駅 徒歩10分
- 山陽電鉄本線「山陽須磨」駅 徒歩8分
- 山陽電鉄本線「須磨寺」駅 徒歩5分
- 価格
- 4980万円~5180万円
- 建物面積
- -㎡
- 土地面積
- 76.19㎡~78㎡
- 築年月(築年数)
- 2026年 8月( 新築 )
- 種別/構造
- 新築一戸建て / 木造
- 地目
- 宅地
ただいまの掲載物件数:






















