芦屋市翠ヶ丘町戸建
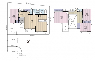
明るく解放感ある吹き抜け LDには床暖房 カースペース2台分(幅約3m×奥行11m) 土地約51坪 2012年建築 生活至便 LDK22帖 主寝室10帖
- 価格
- 7480万円
- ローンの目安
- 22.4万円/月
- 所在地/交通
- 兵庫県芦屋市翠ケ丘町
東海道本線「芦屋」駅 徒歩12分
- 間取り/建物面積
- 4LDK
125.55㎡
消費税法の改正と価格等の表示について
当サイトの課税対象となる物件価格およびその他費用等は、税込み表示となっております。
※消費税法の改正に伴い、物件の引き渡し時期、お支払い時期等により課税率が異なります。
詳しくは、各情報提供元の不動産会社にご確認くださいますようお願いいたします。
-
-
- ダイエー東芦屋店
約964m/12分
-
- 芦屋翠ケ丘郵便局
約475m/6分
-
- 芦屋打出小槌郵便局
約742m/9分
-
- 芦屋市立岩園幼稚園
約1298m/16分
-
- 芦屋市立 岩園小学校
約1206m/15分
-
- 江戸そば芦屋店
約1020m/12分
-
- アレグロ芦屋店
約1108m/14分
-
- イタリアンバール ラッフィナート
約883m/11分
-
- ビゴの店オー・ボン・サンドイッチビゴ
約933m/11分
-
- ルプティコントワール
約648m/8分
-
- 大丸芦屋店
約977m/12分
-
- BIG BEANS 芦屋店
約812m/10分
-
- セブンイレブン 芦屋打出駅北店
約736m/9分
-
ローンシミュレーションこの物件を購入した場合の、月々の支払い価格の一例です。
- 返済期間
-
- 金利
-
- ボーナス時の増額(1回分)
-
- 借入金額:
-
- 頭金:
-

- 毎月の返済額:
(※元利均等方式 金利5.00%まで ※返済年数5~35年まで入力できます)
(※ボーナスは年2回で計算しています。1000万円まで入力できます)
担当者のコメント
ポイント・特徴
LDK20帖以上 駅徒歩10分以内 平坦地 2沿線利用可 土地50坪以上
物件概要 【中古一戸建て】 物件番号:5981014 情報更新日:2026年04月27日 次回更新予定日:2026年05月10日
| 物件名 | 芦屋市翠ヶ丘町戸建 | ||
|---|---|---|---|
| 所在地 | 兵庫県芦屋市翠ケ丘町 | ||
| 交通 |
|
||
| 間取り/詳細 |
4LDK/
LDK 22畳 1室 洋室 6.9畳 1室 洋室 10畳 1室 洋室 6.3畳 1室 洋室 6畳 1室 |
||
| 接道状況 | 一方(南 5m ) | ||
| 価格 | 7480万円 | 主要採光面 | 南 |
| 建物面積/坪数 | 125.55㎡/ 37.97坪 | 土地面積/坪数 | 2168.61㎡/ 656坪 |
| 種別/構造 | 中古一戸建て/木造 | 築年月(築年数) | 2012年 12月(築13年) |
| 階建 | 2階建 | 地目 | 宅地 |
| 駐車場/料金 | 有/- | 地勢 | 平坦 |
| 私道負担面積 | - | セットバック | - |
| 都市計画 | 市街化区域 | 建築確認区分 /建築確認番号 |
-/- |
| 建ぺい率 | 60% | 容積率 | 200% |
| 土地権利 | 所有権 | 用途地域 | 第一種中高層住居専用 |
| 借地料 | - | 現況 | 居住中 |
| 棟総戸数 | - | 販売戸数 | - |
| 国土法届出要否 | 不要 | その他の法令上の制限 | - |
| 取引態様 | 専任媒介 | 引渡時期 | - |
| 設備条件 |
|
||
| 備考 | カースペース2台(幅約3m×奥行11m) | ||
ただいまの掲載物件数:






















