明石市藤江 土地
消費税法の改正と価格等の表示について
当サイトの課税対象となる物件価格およびその他費用等は、税込み表示となっております。
※消費税法の改正に伴い、物件の引き渡し時期、お支払い時期等により課税率が異なります。
詳しくは、各情報提供元の不動産会社にご確認くださいますようお願いいたします。
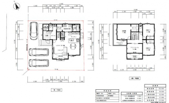
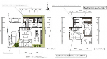
物件概要【売地】
- 物件名
- 明石市藤江 土地
- 所在地
- 兵庫県明石市藤江
- 交通
-
- 山陽本線「西明石」駅 徒歩14分
- 山陽電鉄本線「藤江」駅 徒歩15分
- 山陽電鉄本線「西新町」駅 バス13分 中谷山 停歩5分
- 価格
- 3480万円
- 土地面積
- 150.9㎡
- 坪数
- 45.64坪
- 坪単価
- -
- 種別
- 売地
- 地目
- 宅地
ただいまの掲載物件数:



















