太子町馬場売り土地
消費税法の改正と価格等の表示について
当サイトの課税対象となる物件価格およびその他費用等は、税込み表示となっております。
※消費税法の改正に伴い、物件の引き渡し時期、お支払い時期等により課税率が異なります。
詳しくは、各情報提供元の不動産会社にご確認くださいますようお願いいたします。
-
-
- 斑鳩小学校
約1037m/13分
-
- 太子西中学校
約1499m/18分
-
- 斑鳩幼稚園
約890m/11分
-
- 太子病院
約1005m/12分
-
- スーパーカワベ
約1201m/15分
-
- 太子町役場
約1134m/14分
-
- ドラッグコスモス
約767m/9分
-
- 兵庫信用金庫
約1536m/19分
-
ローンシミュレーションこの物件を購入した場合の、月々の支払い価格の一例です。
- 返済期間
-
- 金利
-
- ボーナス時の増額(1回分)
-
- 借入金額:
-
- 頭金:
-

- 毎月の返済額:
(※元利均等方式 金利5.00%まで ※返済年数5~35年まで入力できます)
(※ボーナスは年2回で計算しています。1000万円まで入力できます)
物件概要 【売地】 物件番号:5963864 情報更新日:2026年04月26日 次回更新予定日:2026年05月03日
| 物件名 | 太子町馬場売り土地 | ||
|---|---|---|---|
| 所在地 | 兵庫県揖保郡太子町馬場 | ||
| 交通 |
|
||
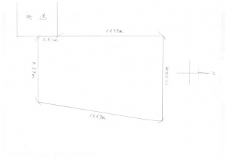
| 接道状況 | 一方(西 5.2m ) | ||
| 価格 | 700万円 | 私道負担面積 | - |
| 土地権利 | 所有権 | 土地面積 | 165.29㎡ |
| 坪数 | 50坪 | 坪単価 | 14万円/坪 |
| 地目 | 宅地 | 地勢 | 平坦 |
| 建築条件 | - | セットバック | 無 |
| 都市計画 | 市街化区域 | 用途地域 | 第一種中高層住居専用 |
| 建ぺい率/容積率 | 60%/150% | 借地料 | - |
| 国土法届出要否 | 不要 | その他の法令上の制限 | - |
| 取引態様/現況 | 一般媒介/更地 | 最適用途 | 住宅用地 |
| 引渡時期 | 相談 | 引渡条件 | - |
| 設備条件 |
|
||
ただいまの掲載物件数:






















