夙川グランドハイツ 13階
ぜひ一度見ていただきたい、「夙川グランドハイツ」です。通学区域の小学校は西宮市立香櫨園小学校徒歩6分。10㎡のバルコニー面積の物件です。当社はお客様の住まい探しをお手伝いします。こだわりやご要望などがあれば、メール又はお電話にてご連絡ください。また、ご質問やご不明な点などもお受けいたします。
- 価格
- 4990万円
- ローンの目安
- 15万円/月
- 所在地/交通
-
兵庫県西宮市川東町
- 阪神本線「香櫨園」駅 徒歩2分
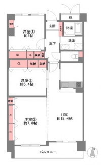
- 間取り/専有面積
-
13階
3LDK
79.26㎡
消費税法の改正と価格等の表示について
当サイトの課税対象となる物件価格およびその他費用等は、税込み表示となっております。
※消費税法の改正に伴い、物件の引き渡し時期、お支払い時期等により課税率が異なります。
詳しくは、各情報提供元の不動産会社にご確認くださいますようお願いいたします。
ローンシミュレーションこの物件を購入した場合の、月々の支払い価格の一例です。
- 返済期間
-
- 金利
-
- ボーナス時の増額(1回分)
-
- 借入金額:
-
- 頭金:
-

- 毎月の返済額:
(※元利均等方式 金利5.00%まで ※返済年数5~35年まで入力できます)
(※ボーナスは年2回で計算しています。1000万円まで入力できます)
担当者のコメント
ポイント・特徴
浴室乾燥機 対面式キッチン 内装リフォーム後渡 南向き 洗面所独立
物件概要【中古マンション】 物件番号:5959358 情報更新日:2026年04月27日 次回更新予定日:2026年05月07日
| 物件名 | 夙川グランドハイツ | ||
|---|---|---|---|
| 所在地 | 兵庫県西宮市川東町 | ||
| 交通 |
|
||
| 間取り/詳細 |
3LDK LDK 15.4畳 洋室 7.8畳 洋室 5.4畳 洋室 5畳 |
||
| 価格 | 4990万円 | 管理費+共益費 | 13800円 |
| 専有面積/土地面積 | 79.26㎡/- | バルコニー面積 | 10㎡ |
| 種別/構造 | 中古マンション/SRC | 築年月(築年数)/方位 | 1998年 4月(築28年)/南 |
| 所在階/階建 | 13階/ 14階建 | 地勢/地目 | -/ - |
| 修繕積立金/借地料 | 20100円/- | 駐車場/料金 | 有/16000円 |
| 管理組合有無 | 有 | 管理形態 | 管理会社に全部委託 |
| 管理方式 | 日勤 | 管理会社 | TC神鋼不動産サービス㈱ |
| 棟総戸数/販売戸数 | 98戸/- | 建築確認区分 /建築確認番号 |
-/- |
| 土地権利 | 所有権 | 国土法届出要否 | 不要 |
| 取引態様/用途地域 | 一般媒介/- | 現況/引渡し時期 | 空家/2026年5月 |
| 設備条件 |
|
||
| 備考 | こだわりポイント満載の夙川グランドハイツ。西宮市立香櫨園小学校が通学範囲内、学校まで徒歩6分。こちらは南向きの物件です。ぜひ一度ご覧ください。5,180万円の物件価格で経済的にもゆとりのある生活が可能。阪神本線香櫨園近郊なら、通勤や通学で困ることはありません。そんな利便性の高い暮らしをお求めなら、地域に詳しい当社にお任せ下さい。 | ||
ただいまの掲載物件数:






















