神戸市長田区御蔵通7丁目の事務所 2階
新長田駅より徒歩10分・阪神高速湊川インターまで550m。 アクセスが非常に良いのが売りです。 幅員が広い西側前面道路との角地に面しており視認性もGOODです。 室内はオフィス仕様ですが業務用エレベータもあり福祉関連にも向いております。
- 賃料
- 55万円
- 坪単価
- 0.8815万円/坪
- 面積
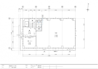
- 206.25㎡
- 所在階
- 2階
- 管理費+共益費
- -
- 敷金
- 3ヶ月
- 礼金
- 3ヶ月
消費税法の改正と価格等の表示について
当サイトの課税対象となる物件価格およびその他費用等は、税込み表示となっております。
※消費税法の改正に伴い、物件の引き渡し時期、お支払い時期等により課税率が異なります。
詳しくは、各情報提供元の不動産会社にご確認くださいますようお願いいたします。
物件概要 【事務所】 物件番号:5945049 情報更新日:2026年04月22日 次回更新予定日:2026年05月05日
| 物件名 | 神戸市長田区御蔵通7丁目の事務所 | ||
|---|---|---|---|
| 所在地 | 兵庫県神戸市長田区御蔵通7丁目 | ||
| 交通 |
|
||
| 賃料 | 55万円 | 管理費+共益費 | - |
| 敷金/保証金/礼金 | 3ヶ月/ -/ 3ヶ月 | 償却/敷引 | -/ - |
| 面積/坪数 | 206.25㎡/ 62.39坪 | 坪単価 | 0.8815万円/坪 |
| 築年月(築年数)/方位 | 1997年 4月(築29年)/- | 契約期間 | 2年 |
| 種別/構造 | 事務所/RC | 部屋/所在階/階建 | 2階/ 2階/ 5階建 |
| 総戸数 | - | 現況/引渡時期 | 空家/即時 |
| 駐車場/料金 | -/- | 保険加入/料金 | 加入義務有/- |
| 権利金/雑費 | -/- | 取引形態/賃貸区分 | 一般媒介/一般 |
| 設備条件 |
|
||
ただいまの掲載物件数:




















