加西市豊倉町の店舗一戸建て
- 賃料
- 25万円
- 間取り
- -
- 面積
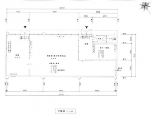
- 153.78㎡
- 所在階
- -
- 管理費+共益費
- -
- 敷金
- 3ヶ月
- 礼金
- -
消費税法の改正と価格等の表示について
当サイトの課税対象となる物件価格およびその他費用等は、税込み表示となっております。
※消費税法の改正に伴い、物件の引き渡し時期、お支払い時期等により課税率が異なります。
詳しくは、各情報提供元の不動産会社にご確認くださいますようお願いいたします。
物件概要 【店舗一戸建て】 物件番号:5949814 情報更新日:2026年04月18日 次回更新予定日:2026年05月02日
| 物件名 | 加西市豊倉町の店舗一戸建て | ||
|---|---|---|---|
| 所在地 | 兵庫県加西市豊倉町 | ||
| 交通 |
|
||
| 間取り/詳細 | - - | ||
| 賃料 | 25万円 | 管理費+共益費 | - |
| 敷金/保証金/礼金 | 3ヶ月/ -/ - | 償却/敷引 | -/ - |
| 坪数 | 46.51坪 | 坪単価 | 0.5376万円/坪 |
| 面積 | 153.78㎡ | 総戸数 | - |
| 築年月(築年数)/方位 | 2005年 6月(築20年)/- | 契約期間 | 2年 |
| 種別/構造 | 店舗一戸建て/鉄骨造 | 部屋/所在階/階建 | -/ - / 1階建 |
| 現況 | 空家 | 引渡時期 | 即時 |
| 駐車場/料金 | -/- | 保険加入/料金 | 加入義務有/- |
| 権利金/雑費 | -/- | 取引形態/賃貸区分 | 一般媒介/一般 |
| 設備条件 |
|
||
| 賃貸保証等 |
【必須加入】 初回保証料 保証人あり80%、保証人なし100%。継続手数料毎月0.8%もしくは毎年10%。 |
||
| 備考 | 目的型特別指定区域、県道玉野倉谷線・沿道商業サービス施設集積区域(詳しくは加西市都市計画法を参照ください)保証金に付いては、改造工事をする場合は発生します。 | ||
ただいまの掲載物件数:


















