姫路市勝原区山戸の店舗事務所 1階
消費税法の改正と価格等の表示について
当サイトの課税対象となる物件価格およびその他費用等は、税込み表示となっております。
※消費税法の改正に伴い、物件の引き渡し時期、お支払い時期等により課税率が異なります。
詳しくは、各情報提供元の不動産会社にご確認くださいますようお願いいたします。
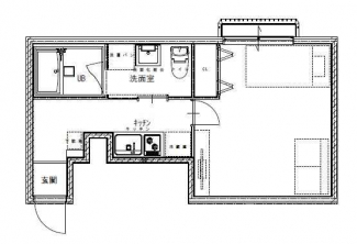
物件概要 【店舗事務所】 物件番号:5977065 情報更新日:2026年04月15日 次回更新予定日:2026年04月29日
| 物件名 | 姫路市勝原区山戸の店舗事務所 | ||
|---|---|---|---|
| 所在地 | 兵庫県姫路市勝原区山戸 | ||
| 交通 |
|
||
| 間取り/詳細 | - - | ||
| 賃料 | 5.1万円 | 管理費+共益費 | - |
| 敷金/保証金/礼金 | -/ -/ - | 償却/敷引 | -/ - |
| 坪数 | 7.38坪 | 坪単価 | 0.6911万円/坪 |
| 面積 | 24.4㎡ | 総戸数 | - |
| 築年月(築年数)/方位 | 2024年 9月(築1年)/- | 契約期間 | 2年 |
| 種別/構造 | 店舗事務所/木造 | 部屋/所在階/階建 | -/ 1階/ 2階建 |
| 現況 | 居住中 | 引渡時期 | 2026年5月中旬予定 |
| 駐車場/料金 | 有/3000円 | 保険加入/料金 | 加入義務有/- |
| 権利金/雑費 | -/- | 取引形態/賃貸区分 | 貸主/一般 |
| 設備条件 |
|
||
| 賃貸保証等 |
【必須加入】 エントランス、総賃料50又は100%、決済サービス料550円、年間更新保証料10,000円。 |
||
| 備考 | インターネット無料! | ||
| その他初期費用1 | 入町費:3000円 | ||
| その他初期費用2 | 退去時クリーニング代:33000円 | ||
ただいまの掲載物件数:




















