スクーデリア立花 店舗・事務所 1階
消費税法の改正と価格等の表示について
当サイトの課税対象となる物件価格およびその他費用等は、税込み表示となっております。
※消費税法の改正に伴い、物件の引き渡し時期、お支払い時期等により課税率が異なります。
詳しくは、各情報提供元の不動産会社にご確認くださいますようお願いいたします。
ポイント・特徴
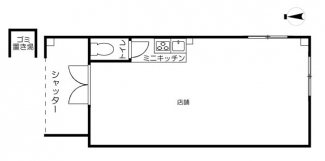
JR立花駅から徒歩3分の好立地に位置する、スクーデリア立花の店舗・事務所物件。約40㎡のワンフロアでレイアウトしやすく、ミニキッチン・トイレ完備で使い勝手も良好です。駅近のため視認性と集客力が期待でき、物販・サロン・事務所など多用途に対応可能。周辺には住宅や商業施設も多く、安定した集客が見込める魅力的な物件です。 ※案内時立会いです
物件概要 【店舗一部】 物件番号:5961823 情報更新日:2026年04月24日 次回更新予定日:2026年05月03日
| 物件名 | スクーデリア立花 店舗・事務所 | ||
|---|---|---|---|
| 所在地 | 兵庫県尼崎市七松町2丁目 | ||
| 交通 |
|
||
| 間取り/詳細 | - - | ||
| 賃料 | 12.8万円 | 管理費+共益費 | 3000円 |
| 敷金/保証金/礼金 | 0ヶ月/ 12.8万円/ 25.6万円 | 償却/敷引 | -/ - |
| 坪数 | 12.25坪 | 坪単価 | 1.0448万円/坪 |
| 面積 | 40.5㎡ | 総戸数 | - |
| 築年月(築年数)/方位 | 1991年 7月(築34年)/- | 契約期間 | 2年 |
| 種別/構造 | 店舗一部/鉄骨造 | 部屋/所在階/階建 | -/ 1階/ 3階建 |
| 現況 | 空家 | 引渡時期 | 即時 |
| 駐車場/料金 | -/- | 保険加入/料金 | 加入義務有/23000円 |
| 権利金/雑費 | -/- | 取引形態/賃貸区分 | 専任媒介/一般 |
| 設備条件 | - | ||
ただいまの掲載物件数:




















