京都府京都市東山区新門前通大和大路東入4丁目松原町の店舗事務所
価格
15.4
万円
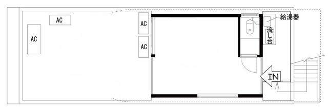
間取り
1
面積
26.1㎡
所在階
4階
知恩院さんの入り小口、東大路通りに面した角でレンガ色の目立つ
間取り
3Fから見下ろすと東大路通りが見えます
窓からの眺め。知恩院方向。
八坂神社まで歩いて7分。外国人を含み、年中観光客が多い場所で
知恩院さんのすぐ近くです☆