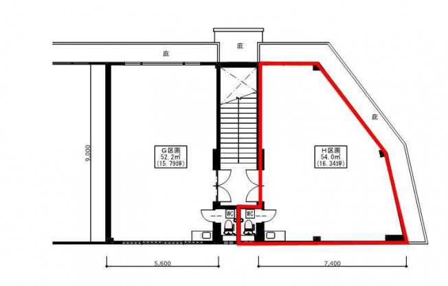
南彦根駅前西口貸店舗 H区画
価格
14.3
万円
面積
54㎡
所在階
2階
間取り