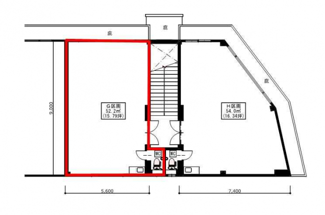
南彦根駅前西口貸店舗 G区画
価格
13.86
万円
面積
52.2㎡
所在階
2階
間取り