CASADIA南塚口 2階
室内設備はネット使用料不要・エアコン・システムキッチンなど大変充実しております。クローゼット付きのマンションです。管理人が巡回しているので、安心して生活できます。バルコニーが南面に付いています。お客様からのお問い合わせの多い、敷地内ごみ置き場があります。お部屋探しをするなら、当社にご連絡下さい。注目を集めている尼崎市エリアや阪急神戸本線塚口付近の賃貸情報を多数取り揃えております。
- 賃料
- 6.7万円
- 間取り
- 1R
- 専有面積
- 21.56㎡
- 所在階
- 2階
- 管理費+共益費
- 4000円
- 敷金
- 0ヶ月
- 礼金
- 10万円
消費税法の改正と価格等の表示について
当サイトの課税対象となる物件価格およびその他費用等は、税込み表示となっております。
※消費税法の改正に伴い、物件の引き渡し時期、お支払い時期等により課税率が異なります。
詳しくは、各情報提供元の不動産会社にご確認くださいますようお願いいたします。
-
-
- KJゼミナール
約2658m/33分
-
- サンディ 尼崎三反田店
約2177m/27分
-
- 業務スーパー 富松店
約2185m/27分
-
- ローソン 尼崎大西町三丁目店
約1859m/23分
-
- ローソン 尼崎立花町四丁目店
約2712m/34分
-
- ワッツ立花店
約2083m/26分
-
- キリン堂 尼崎三反田店
約2077m/26分
-
- キョウエイ調剤薬局 東店
約2106m/26分
-
- 太田内科医院
約2088m/26分
-
- 安田整骨院
約2054m/25分
-
- サイクルベースあさひ 武庫之荘店
約2250m/28分
-
- 潮武庫之荘駅前保育園
約2476m/31分
-
- 神門さんの保育園
約6681m/83分
-
- OKセミナー
約3240m/40分
-
- 個別指導WAM 小曽根校
約6213m/77分
-
- や台ずし 立花駅北口町
約2984m/37分
-
- スシロー 西宮門前町店
約7105m/89分
-
- 甲子園牛萬
約7114m/89分
-
- 鮨・酒・肴 杉玉 阪急武庫之荘
約2498m/31分
-
- 天下一品 武庫之荘店
約2400m/30分
-
担当者のコメント
ポイント・特徴
浄水器 温水洗浄便座 ネット使用料不要 洗面所独立 TVインターホン
物件概要 【アパート】 物件番号:5974660 情報更新日:2026年04月24日 次回更新予定日:2026年04月27日
| 物件名 | CASADIA南塚口 | ||
|---|---|---|---|
| 所在地 | 兵庫県尼崎市南塚口町2丁目 | ||
| 交通 |
|
||
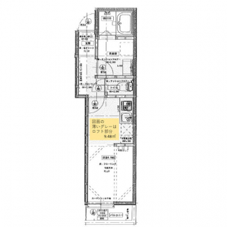
| 間取り/詳細 |
1R 洋室 6.1畳 |
||
| 賃料 | 6.7万円 | 管理費+共益費 | 4000円 |
| 敷金/保証金/礼金 | 0ヶ月/ -/ 10万円 | 償却/敷引 | -/ - |
| 面積 | 21.56㎡ | バルコニー面積 | - |
| 築年月(築年数)/方位 | 2026年 4月(新築)/南 | 契約期間 | 2年 |
| 種別/構造 | アパート/木造 | 部屋/所在階/階建 | 201/ 2階/ 2階建 |
| 総戸数 | - | 現況/入居可能日 | 未完成/2026年4月-予定 |
| 管理形態 | - | 管理方式 | 巡回 |
| 駐車場/料金 | 有/12000円 | 保険加入/料金 | 加入義務有/- |
| 権利金/雑費 | -/- | 取引形態/賃貸区分 | 一般媒介/一般 |
| 修繕積立金 | - | ||
| 設備条件 |
|
||
| 賃貸保証等 | 【必須加入】 | ||
ただいまの掲載物件数:




















