松園町戸建て
浴室と切り離されているので湿気に悩まされることがなくなる独立洗面台を備えております♪収納はクロゼット・シューズボックスなど豊富なので、広々と空間を利用することも可能です♪駐車スペースが、今なら2台分あります♪楽器応相談、楽器を演奏できる快適な物件♪住まい選びは人生においてとても重要な課題の一つです♪あなたの明るい未来へと続く最良の住まい探しなら、是非当社にお任せください(#^^#)
- 賃料
- 25万円
- 間取り
- 3LDK
- 専有面積
- 95.8㎡
- 所在階
- -
- 管理費+共益費
- -
- 敷金
- 1ヶ月
- 礼金
- 1ヶ月
消費税法の改正と価格等の表示について
当サイトの課税対象となる物件価格およびその他費用等は、税込み表示となっております。
※消費税法の改正に伴い、物件の引き渡し時期、お支払い時期等により課税率が異なります。
詳しくは、各情報提供元の不動産会社にご確認くださいますようお願いいたします。
-
-
- セブンイレブン 西宮夙川店
約559m/7分
-
担当者のコメント
ポイント・特徴
ホームページからのお問合せのみ仲介手数料は家賃の55%!(不動産ポータルサイトは1.1ヶ月分)小型犬可 脱衣所 暖房便座 礼金1ヶ月 追い焚き
物件概要 【一戸建て】 物件番号:5923735 情報更新日:2026年04月24日 次回更新予定日:2026年04月26日
| 物件名 | 松園町戸建て | ||
|---|---|---|---|
| 所在地 | 兵庫県西宮市松園町 | ||
| 交通 |
|
||
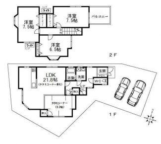
| 間取り/詳細 |
3LDK LDK 21.8畳 洋室 7.5畳 洋室 7.5畳 洋室 6.5畳 |
||
| 賃料 | 25万円 | 管理費+共益費 | - |
| 敷金/保証金/礼金 | 1ヶ月/ -/ 1ヶ月 | 償却/敷引 | -/ - |
| 面積 | 95.8㎡ | バルコニー面積 | - |
| 築年月(築年数)/方位 | 1996年 2月(築30年)/東 | 契約期間 | 2年 |
| 種別/構造 | 一戸建て/木造 | 部屋/所在階/階建 | -/ - / 2階建 |
| 総戸数 | - | 現況/入居可能日 | 空家/相談 |
| 管理形態 | - | 管理方式 | - |
| 駐車場/料金 | 有/- | 保険加入/料金 | 加入義務有/25000円 |
| 権利金/雑費 | -/- | 取引形態/賃貸区分 | 仲介/定期借家権 |
| 修繕積立金 | - | ||
| 設備条件 |
|
||
| 賃貸保証等 | 【必須加入】 | ||
| 備考 | ホームページからのお問合せのみ仲介手数料は家賃の55%!(不動産ポータルサイトは1.1ヶ月分)ペットは小型犬のみ(登録料33,000円)収納はクロゼット・シューズボックスなど豊富なので、広々と空間を利用することも可能です◎独立洗面台が付いているので床が水で濡れたり鏡が曇ったりしにくく、清潔な状態を保ちやすくなっております◎初めてのお引越しや新生活を始める街の情報など、地域密着型の当社スタッフがお客様の疑問またはご質問に親身になってお応えいたします◎西宮市や阪急神戸本線夙川付近での住まい選びは当社までお任せください(#^^#) | ||
| その他初期費用1 | リロサポ:1500円 | ||
| その他初期費用2 | 除菌施工料:29700円 | ||
| その他初期費用3 | 駐車場登録料:11000円 | ||
ただいまの掲載物件数:




















