松園町戸建
身支度に必要となる様々なアイテムを収納可能なスペースがある独立洗面台を備えております。CATV対応のこの物件は手続きのみでCATV視聴が可能です。こちらは一戸建ての物件です。新しい日々を送るにふさわしい、きれいな室内です。西宮市エリアで新生活をお考えの方へ。お客様のご要望に合ったお住まい探しを私たちがサポート致します。まずは、当社までご連絡下さい。
- 賃料
- 25万円
- 間取り
- 3LDK
- 専有面積
- 95.8㎡
- 所在階
- -
- 管理費+共益費
- -
- 敷金
- 1ヶ月
- 礼金
- 0.5ヶ月
消費税法の改正と価格等の表示について
当サイトの課税対象となる物件価格およびその他費用等は、税込み表示となっております。
※消費税法の改正に伴い、物件の引き渡し時期、お支払い時期等により課税率が異なります。
詳しくは、各情報提供元の不動産会社にご確認くださいますようお願いいたします。
担当者のコメント
ポイント・特徴
洗面台 フローリング 2駅利用可 LDK18畳以上 2沿線利用可
物件概要 【一戸建て】 物件番号:5933600 情報更新日:2026年04月24日 次回更新予定日:2026年04月27日
| 物件名 | 松園町戸建 | ||
|---|---|---|---|
| 所在地 | 兵庫県西宮市松園町 | ||
| 交通 |
|
||
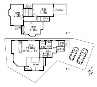
| 間取り/詳細 |
3LDK LDK 21.8畳 洋室 6.5畳 洋室 7.5畳 洋室 7.5畳 |
||
| 賃料 | 25万円 | 管理費+共益費 | - |
| 敷金/保証金/礼金 | 1ヶ月/ -/ 0.5ヶ月 | 償却/敷引 | -/ - |
| 面積 | 95.8㎡ | バルコニー面積 | - |
| 築年月(築年数)/方位 | 1996年 7月(築29年)/南西 | 契約期間 | 2年 |
| 種別/構造 | 一戸建て/木造 | 部屋/所在階/階建 | -/ - / 2階建 |
| 総戸数 | - | 現況/入居可能日 | 空家/相談 |
| 管理形態 | - | 管理方式 | - |
| 駐車場/料金 | 有/- | 保険加入/料金 | 加入義務有/25000円 |
| 権利金/雑費 | -/- | 取引形態/賃貸区分 | 仲介/定期借家権 |
| 修繕積立金 | - | ||
| 設備条件 |
|
||
| 賃貸保証等 |
【必須加入】 保証会社 要:初回 賃料総額100%+月額 賃料総額2%(最低1,000円) |
||
| その他初期費用1 | 駐車場登録料 1台(利用時のみ):11000円 | ||
| その他初期費用2 | 除菌施工料(簡易消火用具付)※契約時のみ:29700円 | ||
ただいまの掲載物件数:




















