武庫ハイマB棟 2階
- 賃料
- 3.3万円
- 間取り
- 2K
- 専有面積
- 28㎡
- 所在階
- 2階
- 管理費+共益費
- -
- 敷金
- -
- 礼金
- 3万円
消費税法の改正と価格等の表示について
当サイトの課税対象となる物件価格およびその他費用等は、税込み表示となっております。
※消費税法の改正に伴い、物件の引き渡し時期、お支払い時期等により課税率が異なります。
詳しくは、各情報提供元の不動産会社にご確認くださいますようお願いいたします。
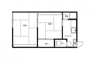
物件概要 【アパート】 物件番号:5951004 情報更新日:2026年04月16日 次回更新予定日:2026年04月30日
| 物件名 | 武庫ハイマB棟 | ||
|---|---|---|---|
| 所在地 | 兵庫県尼崎市稲葉荘4丁目 | ||
| 交通 |
|
||
| 間取り/詳細 | 2K - | ||
| 賃料 | 3.3万円 | 管理費+共益費 | - |
| 敷金/保証金/礼金 | -/ -/ 3万円 | 償却/敷引 | -/ - |
| 面積 | 28㎡ | バルコニー面積 | - |
| 築年月(築年数)/方位 | 1976年 12月(築49年)/西 | 契約期間 | 2028年4月30日まで |
| 種別/構造 | アパート/軽量鉄骨 | 部屋/所在階/階建 | 105/ 2階/ 2階建 |
| 総戸数 | 8戸 | 現況/入居可能日 | 空家/相談 |
| 管理形態 | - | 管理方式 | - |
| 駐車場/料金 | 有/16500円 | 保険加入/料金 | 加入義務有/20000円 |
| 権利金/雑費 | -/- | 取引形態/賃貸区分 | 専任媒介/定期借家権 |
| 修繕積立金 | - | ||
| 設備条件 |
|
||
| 賃貸保証等 |
【必須加入】 日本セーフティー株式会社。初回保証料:2.0万円、継続保証料:月額800円、緊急連絡先(親族)は必要 |
||
| 備考 | 定期借家契約(再契約型)。保証会社及び火災保険の手続きにはスマートフォンが必要です。 | ||
ただいまの掲載物件数:


















