姫路市東駅前町のマンション 3階
消費税法の改正と価格等の表示について
当サイトの課税対象となる物件価格およびその他費用等は、税込み表示となっております。
※消費税法の改正に伴い、物件の引き渡し時期、お支払い時期等により課税率が異なります。
詳しくは、各情報提供元の不動産会社にご確認くださいますようお願いいたします。
物件概要 【マンション】 物件番号:5940114 情報更新日:2026年04月19日 次回更新予定日:2026年05月03日
| 物件名 | 姫路市東駅前町のマンション | ||
|---|---|---|---|
| 所在地 | 兵庫県姫路市東駅前町 | ||
| 交通 |
|
||
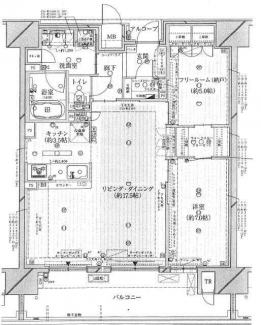
| 間取り/詳細 |
1SLDK 洋 7 LDK 17.5 S 5 |
||
| 賃料 | 21万円 | 管理費+共益費 | - |
| 敷金/保証金/礼金 | 1ヶ月/ -/ 2ヶ月 | 償却/敷引 | -/ - |
| 面積 | 77.15㎡ | バルコニー面積 | - |
| 築年月(築年数)/方位 | 2018年 12月(築7年)/南 | 契約期間 | 2年 |
| 種別/構造 | マンション/RC | 部屋/所在階/階建 | -/ 3階/ 15階建 |
| 総戸数 | - | 現況/入居可能日 | 空家/即時 |
| 管理形態 | - | 管理方式 | - |
| 駐車場/料金 | -/- | 保険加入/料金 | 加入義務有/22000円 |
| 権利金/雑費 | -/- | 取引形態/賃貸区分 | 一般媒介/一般 |
| 修繕積立金 | - | ||
| 設備条件 |
|
||
| 賃貸保証等 |
【必須加入】 日本セーフティー株式会社 初回:賃料の50% 更新時:10000円 24時間サポート(月額1100円 |
||
| 備考 | ※賃貸保証、24時間サポート、総合補償保険加入要※退去時清掃費77,000円※食洗器、冷暖房機は設備ではありません。 | ||
ただいまの掲載物件数:




















