【限定1区画】宝塚市売布山手町 デザイナーズ新築戸建て
【限定1区画】北西角地/車2台駐車可能/嬉しいパントリー付デザイナーズ住宅
- 価格
- 5280万円
- ローンの目安
- 15.8万円/月
- 所在地/交通
- 兵庫県宝塚市売布山手町
阪急宝塚本線「売布神社」駅 徒歩8分
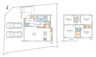
- 間取り/建物面積
- 4LDK
100.84㎡
消費税法の改正と価格等の表示について
当サイトの課税対象となる物件価格およびその他費用等は、税込み表示となっております。
※消費税法の改正に伴い、物件の引き渡し時期、お支払い時期等により課税率が異なります。
詳しくは、各情報提供元の不動産会社にご確認くださいますようお願いいたします。
ローンシミュレーションこの物件を購入した場合の、月々の支払い価格の一例です。
- 返済期間
-
- 金利
-
- ボーナス時の増額(1回分)
-
- 借入金額:
-
- 頭金:
-

- 毎月の返済額:
(※元利均等方式 金利5.00%まで ※返済年数5~35年まで入力できます)
(※ボーナスは年2回で計算しています。1000万円まで入力できます)
担当者のコメント
【日本全国で全壊・半壊「0」の実績】 制震『TRCダンパー』採用!
◆物件のポイント
●北西角地のため、開放感◎
●【日本全国で全壊・半壊「0」の実績】 制震『TRCダンパー』採用!
●リビングに床暖房完備
●駐車2台可能(車種による)
●キッチンには広々パントリー付き
◆立地のポイント
●阪急宝塚線「売布神社」駅まで徒歩約8分(約640m)
●宝塚市立「売布小学校」まで徒歩約7分(約500m)
\本物件はまだ【未完成】ですが、お近くのモデルルーム・ショールーム内覧可能です♪/
\詳細な資料も取り揃えておりますので、是非一度店舗へお越しくださいませ!/
ポイント・特徴
-
物件概要 【新築一戸建て】 物件番号:5972467 情報更新日:2026年04月27日 次回更新予定日:2026年05月04日
| 物件名 | 【限定1区画】宝塚市売布山手町 デザイナーズ新築戸建て | ||
|---|---|---|---|
| 所在地 | 兵庫県宝塚市売布山手町 | ||
| 交通 |
|
||
| 間取り/詳細 |
4LDK/
LDK 18.3畳 洋室 7畳 1室 洋室 5.2畳 2室 洋室 5畳 1室 |
||
| 接道状況 | 角地(北 6.2m )(西 4.3m ) | ||
| 価格 | 5280万円 | 主要採光面 | 南 |
| 建物面積/坪数 | 100.84㎡/ 30.5坪 | 土地面積/坪数 | 169.1㎡/ 51.15坪 |
| 種別/構造 | 新築一戸建て/木造 | 築年月(築年数) | 2026年 3月(新築) |
| 階建 | 2階建 | 地目 | 宅地 |
| 駐車場/料金 | -/- | 地勢 | 高台 |
| 私道負担面積 | - | セットバック | 無 |
| 都市計画 | 市街化区域 | 建築確認区分 /建築確認番号 |
-/HK25-0412 |
| 建ぺい率 | 50% | 容積率 | 100% |
| 土地権利 | 所有権 | 用途地域 | 第一種低層住居専用 |
| 借地料 | - | 現況 | 未完成・建築中 |
| 棟総戸数 | - | 販売戸数 | - |
| 国土法届出要否 | 不要 | その他の法令上の制限 | - |
| 取引態様 | 一般媒介 | 引渡時期 | - |
| 設備条件 |
|
||
ただいまの掲載物件数:






















