北名次町高性能住宅
高さ約5mの吹抜がもたらす、圧倒的な開放感と光に満ちた上質空間。 ホテルライクな意匠と高気密・高断熱性能により、外気の影響や騒音を抑え、家中どこでも快適な温度と静けさを実現。日々の暮らしに深い安らぎと質の高い睡眠をもたらします。
- 価格
- 13800万円
- ローンの目安
- 41.4万円/月
- 所在地/交通
- 兵庫県西宮市北名次町
阪急甲陽線「苦楽園口」駅 徒歩2分
- 間取り/建物面積
- 4LDK
153.01㎡
消費税法の改正と価格等の表示について
当サイトの課税対象となる物件価格およびその他費用等は、税込み表示となっております。
※消費税法の改正に伴い、物件の引き渡し時期、お支払い時期等により課税率が異なります。
詳しくは、各情報提供元の不動産会社にご確認くださいますようお願いいたします。
-
-
- 夙川河川敷緑地(夙川公園)
約498m/6分
-
- ウエルシア西宮北名次店
約46m/0分
-
- ファミリーマート 西宮名次町店
約172m/2分
ローンシミュレーションこの物件を購入した場合の、月々の支払い価格の一例です。
- 返済期間
-
- 金利
-
- ボーナス時の増額(1回分)
-
- 借入金額:
-
- 頭金:
-

- 毎月の返済額:
(※元利均等方式 金利5.00%まで ※返済年数5~35年まで入力できます)
(※ボーナスは年2回で計算しています。1000万円まで入力できます)
ポイント・特徴
シャッター付ガレージは高い防犯性と利便性を兼ね備え、雨の日も濡れずにスムーズな出入りが可能。さらに長期優良住宅認定に加え、太陽光発電×ECO ONE×蓄電池を搭載し、年間約25万円の光熱費削減も期待できます。 耐震等級2+制震テープ採用で災害にも強く、阪急「苦楽園口」駅徒歩2分という希少立地が資産価値を高める一邸です。
物件概要 【新築一戸建て】 物件番号:5982653 情報更新日:2026年04月24日 次回更新予定日:2026年05月03日
物件名 北名次町高性能住宅 所在地 兵庫県西宮市北名次町 交通 - 阪急甲陽線「苦楽園口」駅 徒歩2分
- 阪急神戸本線「夙川」駅 徒歩12分
- 東海道本線「さくら夙川」駅 徒歩15分
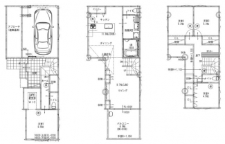
間取り/詳細 4LDK/
洋室 6.5畳
DK 11.6畳
L 9.7畳
洋室 4.5畳
洋室 5.2畳
洋室 5.2畳接道状況 二方(北 m )(南 m ) 価格 13800万円 主要採光面 南 建物面積/坪数 153.01㎡/ 46.28坪 土地面積/坪数 101.05㎡/ 30.56坪 種別/構造 新築一戸建て/木造 築年月(築年数) 2026年 3月(新築) 階建 3階建 地目 宅地 駐車場/料金 有/- 地勢 - 私道負担面積 9.42㎡ セットバック 無 都市計画 市街化区域 建築確認区分
/建築確認番号-/- 建ぺい率 60% 容積率 200% 土地権利 所有権 用途地域 第一種中高層住居専用 借地料 - 現況 空家 棟総戸数 - 販売戸数 - 国土法届出要否 不要 その他の法令上の制限 - 取引態様 売主 引渡時期 - 設備条件 - 宅配ボックス
- バルコニー
- フローリング
- エアコン
- ビルトガレージ
- システムキッチン
- 食器洗乾燥機
- バス・トイレ別
- 温水洗浄便座
- 洗髪洗面化粧台
- クロゼット
- ウォークインクローゼット
- シューズボックス
- オートロック
- TVモニタ付インターホン
- 閑静な住宅地
- 陽当り良好
物件お問い合わせ
同じエリアの新築一戸建て
価格と住所の近い物件
- 西宮市美作町の中古一戸建て
- 13800万円 7SLDK/378.07㎡
- 兵庫県西宮市美作町
- 阪急甲陽線「苦楽園口」駅 徒歩16分
- 西宮市広田町の中古一戸建て
- 12950万円 4SLDK/266.2㎡
- 兵庫県西宮市広田町
- 阪急今津線「門戸厄神」駅 徒歩15分
- 西宮市柏堂町の中古一戸建て
- 14800万円 6LDK/460.87㎡
- 兵庫県西宮市柏堂町
- 阪急神戸本線「夙川」駅
- 西宮市剣谷町の中古一戸建て
- 15000万円 5LDK/254.21㎡
- 兵庫県西宮市剣谷町
- 阪急甲陽線「甲陽園」駅 徒歩26分
- 西宮市獅子ケ口町の中古一戸建て
- 11800万円 6LDK/194.3㎡
- 兵庫県西宮市獅子ケ口町
- 阪急甲陽線「甲陽園」駅 徒歩8分

- 兵庫県西宮市花園町11-19
- TEL/0798-31-7400
- FAX/-
- 兵庫県知事免許(3)第204139号
- (一社)兵庫県宅地建物取引業協会
携帯電話画面
このQRコードを読み取ることで、ケータイでも物件情報を確認できます。
-
ただいまの掲載物件数:





















