神戸市灘区神ノ木通3丁目新築一戸建て
耐震等級2・断熱等級4取得!フラット35S対応。徒歩約10分ほどに阪神「大石」駅をはじめ教育施設や買い物施設など多数の生活施設が揃っています。2階にリビングダイニングスペースを設けることで、通行人からの視線が気になりにくく、プライバシー性が高まっています。クローゼット4カ所にパントリー、シューズクロークなど収納豊富な一戸建てです♪
- 価格
- 5980万円
- ローンの目安
- 17.9万円/月
- 所在地/交通
- 兵庫県神戸市灘区神ノ木通3丁目
阪神本線「大石」駅 徒歩11分
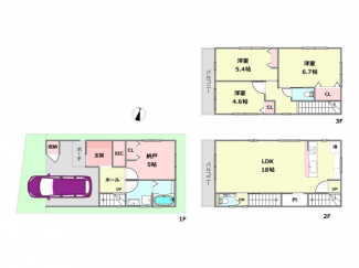
- 間取り/建物面積
- 4LDK
112.12㎡
消費税法の改正と価格等の表示について
当サイトの課税対象となる物件価格およびその他費用等は、税込み表示となっております。
※消費税法の改正に伴い、物件の引き渡し時期、お支払い時期等により課税率が異なります。
詳しくは、各情報提供元の不動産会社にご確認くださいますようお願いいたします。
-
-
- 神戸市立灘小学校
約352m/4分
-
- 神戸市立原田中学校
約833m/10分
-
- ホザナ幼稚園
約326m/4分
-
- オリンピア都こども園
約537m/6分
-
- 私立神戸海星女子学院高校
約2162m/27分
-
- グルメシティ灘店
約517m/6分
-
- 都賀川公園
約289m/3分
-
- ウェルブ六甲道2番街
約1179m/14分
-
- ファミリーマート 灘大内店
約215m/2分
-
- V・drug 阪神大石駅店
約848m/10分
-
- コーナンPRO新在家店
約1512m/19分
-
- 金沢病院
約185m/2分
-
- 徳島大正銀行 神戸支店
約721m/9分
-
- 神戸将軍郵便局
約494m/6分
-
- 神戸松蔭女子学院大学図書館
約1975m/24分
-
- 灘警察署
約309m/4分
-
- 神戸市東灘区役所
約3759m/47分
-
ローンシミュレーションこの物件を購入した場合の、月々の支払い価格の一例です。
- 返済期間
-
- 金利
-
- ボーナス時の増額(1回分)
-
- 借入金額:
-
- 頭金:
-

- 毎月の返済額:
(※元利均等方式 金利5.00%まで ※返済年数5~35年まで入力できます)
(※ボーナスは年2回で計算しています。1000万円まで入力できます)
担当者のコメント
ポイント・特徴
床暖房 バス・トイレ別 対面式キッチン パントリー 前道6m以上
物件概要 【新築一戸建て】 物件番号:5969966 情報更新日:2026年04月26日 次回更新予定日:2026年05月06日
| 物件名 | 神戸市灘区神ノ木通3丁目新築一戸建て | ||
|---|---|---|---|
| 所在地 | 兵庫県神戸市灘区神ノ木通3丁目 | ||
| 交通 |
|
||
| 間取り/詳細 |
4LDK/
洋室 5畳 LDK 18畳 洋室 5.4畳 洋室 4.6畳 洋室 6.7畳 |
||
| 接道状況 | 一方(西 6m ) | ||
| 価格 | 5980万円 | 主要採光面 | - |
| 建物面積/坪数 | 112.12㎡/ 33.91坪 | 土地面積/坪数 | 54.74㎡/ 16.55坪 |
| 種別/構造 | 新築一戸建て/木造 | 築年月(築年数) | 2025年 11月(新築) |
| 階建 | 3階建 | 地目 | 宅地 |
| 駐車場/料金 | 有/- | 地勢 | 平坦 |
| 私道負担面積 | - | セットバック | 無 |
| 都市計画 | 市街化区域 | 建築確認区分 /建築確認番号 |
-/J25-20002 |
| 建ぺい率 | 60% | 容積率 | 200% |
| 土地権利 | 所有権 | 用途地域 | 第一種住居 |
| 借地料 | - | 現況 | 空家 |
| 棟総戸数 | 3戸 | 販売戸数 | - |
| 国土法届出要否 | 不要 | その他の法令上の制限 | - |
| 取引態様 | 仲介 | 引渡時期 | - |
| 設備条件 |
|
||
| 備考 | 耐震等級2・断熱等級4取得! | ||
| 設備(その他) | 大阪ガス・関西電力・公共上下水道 | ||
ただいまの掲載物件数:






















