有野台6丁目マリンホーム施工新築一戸建2号地
消費税法の改正と価格等の表示について
当サイトの課税対象となる物件価格およびその他費用等は、税込み表示となっております。
※消費税法の改正に伴い、物件の引き渡し時期、お支払い時期等により課税率が異なります。
詳しくは、各情報提供元の不動産会社にご確認くださいますようお願いいたします。
ローンシミュレーションこの物件を購入した場合の、月々の支払い価格の一例です。
- 返済期間
-
- 金利
-
- ボーナス時の増額(1回分)
-
- 借入金額:
-
- 頭金:
-

- 毎月の返済額:
(※元利均等方式 金利5.00%まで ※返済年数5~35年まで入力できます)
(※ボーナスは年2回で計算しています。1000万円まで入力できます)
物件概要 【新築一戸建て】 物件番号:5979254 情報更新日:2026年04月24日 次回更新予定日:2026年05月02日
| 物件名 | 有野台6丁目マリンホーム施工新築一戸建2号地 | ||
|---|---|---|---|
| 所在地 | 兵庫県神戸市北区有野台6丁目 | ||
| 交通 |
|
||
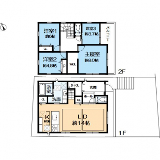
| 間取り/詳細 |
4LDK/
LD 14畳 1室 K 5畳 1室 洋室 6畳 1室 洋室 3.7畳 1室 洋室 4.8畳 1室 洋室 8畳 1室 |
||
| 接道状況 | 一方(東 6m ) | ||
| 価格 | 3380万円 | 主要採光面 | - |
| 建物面積/坪数 | 107.13㎡/ 32.4坪 | 土地面積/坪数 | 125.88㎡/ 38.07坪 |
| 種別/構造 | 新築一戸建て/木造 | 築年月(築年数) | 2026年 5月(新築) |
| 階建 | 2階建 | 地目 | 宅地 |
| 駐車場/料金 | 有/- | 地勢 | 平坦 |
| 私道負担面積 | - | セットバック | 無 |
| 都市計画 | 市街化区域 | 建築確認区分 /建築確認番号 |
-/BVJ-ENG25-10-1198 |
| 建ぺい率 | 50% | 容積率 | 100% |
| 土地権利 | 所有権 | 用途地域 | 第一種低層住居専用 |
| 借地料 | - | 現況 | 未完成・建築中 |
| 棟総戸数 | - | 販売戸数 | - |
| 国土法届出要否 | 不要 | その他の法令上の制限 | - |
| 取引態様 | 仲介 | 引渡時期 | - |
| 設備条件 |
|
||
ただいまの掲載物件数:






















