長田区五位ノ池町4丁目_新築戸建
玄関ホールにも収納スペースがあると便利ですね☆日常生活で利用頻度の高い水回りだからこそ、使い勝手のいいシステムキッチンを選んでみませんか☆来訪者を確認できる、TVインターホン付きです☆3SLDKの間取りです☆住みやすい環境が整った神戸市長田区で一戸建てを購入するのであれば、豊富な不動産情報を扱う当社のスタッフまでお問い合わせください(^^)
- 価格
- 3280万円
- ローンの目安
- 9.8万円/月
- 所在地/交通
- 兵庫県神戸市長田区五位ノ池町4丁目
山陽電鉄本線「板宿」駅 徒歩12分
- 間取り/建物面積
- 3SLDK
107.37㎡
消費税法の改正と価格等の表示について
当サイトの課税対象となる物件価格およびその他費用等は、税込み表示となっております。
※消費税法の改正に伴い、物件の引き渡し時期、お支払い時期等により課税率が異なります。
詳しくは、各情報提供元の不動産会社にご確認くださいますようお願いいたします。
-
-
- アキヨシ整形外科病院
約342m/4分
-
- 五位の池小学校
約403m/5分
-
- ドラッグストア サーバ 長田戸崎店
約574m/7分
-
- エディオン西代店
約682m/8分
-
- ライフ西代店
約663m/8分
-
ローンシミュレーションこの物件を購入した場合の、月々の支払い価格の一例です。
- 返済期間
-
- 金利
-
- ボーナス時の増額(1回分)
-
- 借入金額:
-
- 頭金:
-

- 毎月の返済額:
(※元利均等方式 金利5.00%まで ※返済年数5~35年まで入力できます)
(※ボーナスは年2回で計算しています。1000万円まで入力できます)
担当者のコメント
ポイント・特徴
シャッター 耐震構造 フローリング 納戸 3口以上コンロ
物件概要 【新築一戸建て】 物件番号:5932921 情報更新日:2026年04月23日 次回更新予定日:2026年05月02日
| 物件名 | 長田区五位ノ池町4丁目_新築戸建 | ||
|---|---|---|---|
| 所在地 | 兵庫県神戸市長田区五位ノ池町4丁目 | ||
| 交通 |
|
||
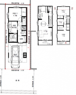
| 間取り/詳細 |
3SLDK/
洋室 6畳 1室 洋室 7.5畳 1室 S 2.1畳 1室 LDK 17.5畳 1室 洋室 4.5畳 1室 |
||
| 接道状況 | 一方(南 4.8m ) | ||
| 価格 | 3280万円 | 主要採光面 | 南 |
| 建物面積/坪数 | 107.37㎡/ 32.47坪 | 土地面積/坪数 | 64.56㎡/ 19.52坪 |
| 種別/構造 | 新築一戸建て/木造 | 築年月(築年数) | 2026年 4月(新築) |
| 階建 | 3階建 | 地目 | 宅地 |
| 駐車場/料金 | 有/- | 地勢 | 平坦 |
| 私道負担面積 | 12.9㎡ | セットバック | 済 |
| 都市計画 | 市街化区域 | 建築確認区分 /建築確認番号 |
-/BVJ-EKB-25-10-0833 |
| 建ぺい率 | 60% | 容積率 | 200% |
| 土地権利 | 所有権 | 用途地域 | 第一種中高層住居専用 |
| 借地料 | - | 現況 | 未完成・建築中 |
| 棟総戸数 | - | 販売戸数 | - |
| 国土法届出要否 | 不要 | その他の法令上の制限 | 眺望景観形成地域 |
| 取引態様 | 専任媒介 | 引渡時期 | - |
| 設備条件 |
|
||
| 備考 | 通学区域の小学校は五位の池小学校徒歩6分!こちらのお住まいは2階部分にLDKがあります!日中心地よく過ごせる、南向きの物件はいかがでしょうか!神戸市長田区より公開中の山陽電鉄本線板宿周辺にある一戸建てをお探しの方は、板宿住宅にお気軽にご依頼ください!ご意見などは078-735-4141で承っております(^^) | ||
ただいまの掲載物件数:






















