西宮市生瀬東町1期 全4区画
◇JR「宝塚」駅徒歩10分、阪急「宝塚」駅徒歩11分◇生瀬小学校・塩瀬中学校通学エリア◇分譲が続くエリアで、閑静な住宅街に立地となります◇主寝室にはウォークインクローゼットがある他、キッチン横にも収納があり収納豊富な物件です◇食洗機付システムキッチンや浴室乾燥機等住宅設備も充実◇建築物省エネルギー性能表示制度「BELS」採用。フラット35Sも利用可です。詳細は弊社担当者までおお尋ねください。
- 価格
- 3998万円
- ローンの目安
- 12万円/月
- 所在地/交通
- 兵庫県西宮市生瀬東町
福知山線「宝塚」駅 徒歩10分
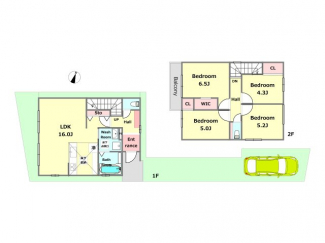
- 間取り/建物面積
- 4LDK
89.01㎡
消費税法の改正と価格等の表示について
当サイトの課税対象となる物件価格およびその他費用等は、税込み表示となっております。
※消費税法の改正に伴い、物件の引き渡し時期、お支払い時期等により課税率が異なります。
詳しくは、各情報提供元の不動産会社にご確認くださいますようお願いいたします。
-
-
- 西宮市立生瀬小学校
約1009m/12分
-
- 西宮市立塩瀬中学校
約3884m/48分
-
- ひまわり家庭保育所
約765m/9分
-
- 自然幼稚園
約383m/4分
-
- 兵庫県立 宝塚北高等学校
約1442m/18分
-
- 栄町3丁目第1公園
約485m/6分
-
- まねきや宝塚
約751m/9分
-
- アピア3
約3041m/38分
-
- ファミリーマート 宝塚栄町店
約576m/7分
-
- ロイヤルホームセンター 宝塚
約3713m/46分
-
- セガミ薬局 生瀬店
約480m/6分
-
- 北摂中央病院
約1450m/18分
-
- 宝塚駅前郵便局
約863m/10分
-
- 池田泉州銀行宝塚駅前支店
約860m/10分
-
- みこころの点字会文庫
約1718m/21分
-
- 西宮警察署生瀬交番
約515m/6分
-
- 宝塚市売布神社駅前サービスステーション
約2857m/35分
-
ローンシミュレーションこの物件を購入した場合の、月々の支払い価格の一例です。
- 返済期間
-
- 金利
-
- ボーナス時の増額(1回分)
-
- 借入金額:
-
- 頭金:
-

- 毎月の返済額:
(※元利均等方式 金利5.00%まで ※返済年数5~35年まで入力できます)
(※ボーナスは年2回で計算しています。1000万円まで入力できます)
担当者のコメント
ポイント・特徴
三面鏡付洗面化粧台 ベタ基礎 ウォークインクロゼット バルコニー LDK15帖以上
物件概要 【新築一戸建て】 物件番号:5975939 情報更新日:2026年04月29日 次回更新予定日:2026年05月13日
| 物件名 | 西宮市生瀬東町1期 全4区画 | ||
|---|---|---|---|
| 所在地 | 兵庫県西宮市生瀬東町 | ||
| 交通 |
|
||
| 間取り/詳細 |
4LDK/
LDK 16畳 洋室 6.5畳 洋室 5畳 洋室 4.3畳 洋室 5.2畳 |
||
| 接道状況 | 一方(東 6m ) | ||
| 価格 | 3998万円 | 主要採光面 | - |
| 建物面積/坪数 | 89.01㎡/ 26.92坪 | 土地面積/坪数 | 129.32㎡/ 39.11坪 |
| 種別/構造 | 新築一戸建て/木造 | 築年月(築年数) | 2026年 7月(新築) |
| 階建 | 2階建 | 地目 | 宅地 |
| 駐車場/料金 | 有/- | 地勢 | 平坦 |
| 私道負担面積 | - | セットバック | 無 |
| 都市計画 | 市街化区域 | 建築確認区分 /建築確認番号 |
-/KS126-0420-51527 |
| 建ぺい率 | 60% | 容積率 | 200% |
| 土地権利 | 所有権 | 用途地域 | 第二種中高層住居専用 |
| 借地料 | - | 現況 | 未完成・建築中 |
| 棟総戸数 | 4戸 | 販売戸数 | - |
| 国土法届出要否 | 不要 | その他の法令上の制限 | - |
| 取引態様 | 仲介 | 引渡時期 | - |
| 設備条件 |
|
||
| 備考 | ◇JR「宝塚」駅徒歩10分 | ||
| 設備(その他) | 公営水道・本下水・関西電力 | ||
ただいまの掲載物件数:






















