神戸市北区有馬町の店舗事務所 1階
消費税法の改正と価格等の表示について
当サイトの課税対象となる物件価格およびその他費用等は、税込み表示となっております。
※消費税法の改正に伴い、物件の引き渡し時期、お支払い時期等により課税率が異なります。
詳しくは、各情報提供元の不動産会社にご確認くださいますようお願いいたします。
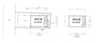
物件概要 【店舗事務所】 物件番号:5932555 情報更新日:2026年04月17日 次回更新予定日:2026年05月01日
| 物件名 | 神戸市北区有馬町の店舗事務所 | ||
|---|---|---|---|
| 所在地 | 兵庫県神戸市北区有馬町 | ||
| 交通 |
|
||
| 間取り/詳細 | 1LDK - | ||
| 賃料 | 38.5万円 | 管理費+共益費 | - |
| 敷金/保証金/礼金 | 115万円/ -/ 115万円 | 償却/敷引 | -/ - |
| 坪数 | 10.01坪 | 坪単価 | 3.8462万円/坪 |
| 面積 | 33.12㎡ | 総戸数 | - |
| 築年月(築年数)/方位 | 2026年 8月(新築)/- | 契約期間 | 2年 |
| 種別/構造 | 店舗事務所/木造 | 部屋/所在階/階建 | -/ 1階/ 2階建 |
| 現況 | 未完成 | 引渡時期 | 相談 |
| 駐車場/料金 | 有/- | 保険加入/料金 | -/- |
| 権利金/雑費 | -/- | 取引形態/賃貸区分 | 一般媒介/一般 |
| 設備条件 |
|
||
| 賃貸保証等 |
【任意加入】 日本セーフティー株式会社 |
||
| 備考 | 日本三古湯・有馬温泉の好立地に新築テナントが登場!飲食、物販、事務所など多用途利用可。真新しい空間で、内装の自由度が高く、初期投資を抑えられます。観光客や地元住民の高い集客力と、モダンな外観が持つ高い視認性で、あなたのビジネスを成功へ導きます。お問い合わせはお早めに! | ||
ただいまの掲載物件数:




















