建隆ビルⅡ 6階
★旧居留地内の綺麗なオフィスビル ★2面採光により開放的な空間 ★トイレ・給湯室改修 ★併設立体駐車場有(複数契約可) ★会議室有(有償) ★貸倉庫あり(別契約)
- 賃料
- 49.621万円
- 間取り
- -
- 面積
- 156.69㎡
- 所在階
- 6階
- 管理費+共益費
- 182490円
- 敷金
- 371万円
- 礼金
- 0ヶ月
消費税法の改正と価格等の表示について
当サイトの課税対象となる物件価格およびその他費用等は、税込み表示となっております。
※消費税法の改正に伴い、物件の引き渡し時期、お支払い時期等により課税率が異なります。
詳しくは、各情報提供元の不動産会社にご確認くださいますようお願いいたします。
物件概要 【店舗一部】 物件番号:5959786 情報更新日:2026年04月27日 次回更新予定日:2026年05月08日
| 物件名 | 建隆ビルⅡ | ||
|---|---|---|---|
| 所在地 | 兵庫県神戸市中央区海岸通 | ||
| 交通 |
|
||
| 間取り/詳細 | - - | ||
| 賃料 | 49.621万円 | 管理費+共益費 | 182490円 |
| 敷金/保証金/礼金 | 371万円/ -/ 0ヶ月 | 償却/敷引 | -/ - |
| 坪数 | 47.39坪 | 坪単価 | 1.0468万円/坪 |
| 面積 | 156.69㎡ | 総戸数 | - |
| 築年月(築年数)/方位 | 1988年 8月(築37年)/- | 契約期間 | 3年 |
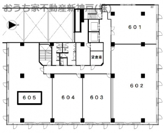
| 種別/構造 | 店舗一部/SRC | 部屋/所在階/階建 | 605/ 6階/ 9階建 |
| 現況 | 賃貸中 | 引渡時期 | 相談 |
| 駐車場/料金 | 有/44000円 | 保険加入/料金 | 加入義務有/- |
| 権利金/雑費 | -/- | 取引形態/賃貸区分 | 一般媒介/一般 |
| 設備条件 |
|
||
| 賃貸保証等 | 【必須加入】 | ||
ただいまの掲載物件数:




















