兵庫県たつの市ロードサイド店舗
消費税法の改正と価格等の表示について
当サイトの課税対象となる物件価格およびその他費用等は、税込み表示となっております。
※消費税法の改正に伴い、物件の引き渡し時期、お支払い時期等により課税率が異なります。
詳しくは、各情報提供元の不動産会社にご確認くださいますようお願いいたします。
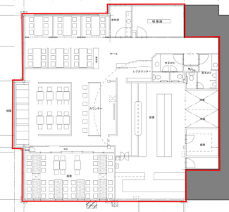
物件概要 【店舗一部】 物件番号:5966049 情報更新日:2026年04月26日 次回更新予定日:2026年04月30日
| 物件名 | 兵庫県たつの市ロードサイド店舗 | ||
|---|---|---|---|
| 所在地 | 兵庫県たつの市揖保川町原 | ||
| 交通 |
|
||
| 間取り/詳細 | - - | ||
| 賃料 | 88万円 | 管理費+共益費 | - |
| 敷金/保証金/礼金 | 0.0001万円/ -/ 0ヶ月 | 償却/敷引 | -/ - |
| 坪数 | 97.68坪 | 坪単価 | 0.9009万円/坪 |
| 面積 | 322.92㎡ | 総戸数 | - |
| 築年月(築年数)/方位 | 1997年 6月(築28年)/南 | 契約期間 | 2年 |
| 種別/構造 | 店舗一部/鉄骨造 | 部屋/所在階/階建 | -/ - / 1階建 |
| 現況 | 空家 | 引渡時期 | 即時 |
| 駐車場/料金 | -/- | 保険加入/料金 | 加入義務有/- |
| 権利金/雑費 | -/- | 取引形態/賃貸区分 | 仲介/一般 |
| 設備条件 |
|
||
| 設備(その他) | 現状:居抜き テーブル・椅子・厨房台(前店舗の残置) | ||
| 条件(その他) | 業態:相談可、内装工事負担:相談可、退去時条件:相談可、賃料交渉:相談可! 飲食可! 敷金:相談可! | ||
ただいまの掲載物件数:




















